売マンション(加曽利町)
物件名:グリーンコーポ加曽利
交通:JR千葉駅バス
5,880万円(税込)
*共益費等含む予定総収入
○現在9室中8室が入居中。
○現在空き室の募集賃料
(303)48,000円 共益費2,000円
☆全室南向き角部屋で陽当り良好!
☆平成16年12月外装リフォーム!
☆201/202/302号室の浴室・トイレ・洗面台は新品リフォーム!

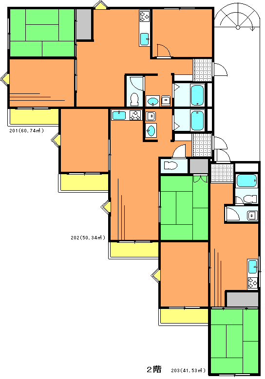
<物件概要>■所在:千葉市若葉区加曽利983番2■交通:JR千葉駅バス20分停歩3分■構造:鉄骨造陸屋根3階建■築年:昭和63年10月(平成16年12月外装リフォーム)■建物面積:393.11u■土地面積:331.00u■土地権利:所有権u■都市計画:市街化区域■用途地域:1種低層■建ぺい率:60%■容積率:150%■設備:公営水道・都市ガス・浄化槽■駐車場:3台
<賃貸条件>■共益費:2000円■駐車場:4200円■礼金:1ヶ月■敷金:2ヶ月■契約期間:2年■更新:有■備考:当社指定家財保険加入20,000円/2年




<内部の様子>
お問い合わせ・お申込先はこちらまたは電話043-233-3888へ