売一戸建住宅(殿台町)
モノレールみつわ台駅徒歩9分
お問い合わせ・お申込先はこちらへ
価格万円
☆リフォーム済み!
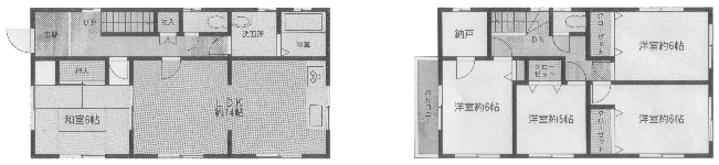
☆広い5LDK!
☆駐車場は3台分!
高台のため眺望・陽当り良好!(2階からの眺め)
■所在:千葉市若葉区殿台町■交通:モノレールみつわ台駅徒歩9分■土地:235.12u・71.12坪■都市計画:市街化区域■用途地域:第一種低層住居専用地域■建物:木造2階建138.00u・41.74坪■設備:井戸(公営水道可)・公共下水・プロパンガス■駐車場:有り(3台)■築年月:平成12年2月築
